
HD hom European Hoist Electric Ib qho nyiaj tau siv ua haujlwm Crane
European Single Girder Nyiaj Siv Tawm Crane yog compact lifting machinery tsim thiab tsim nyob rau hauv nruj raws li FEM thiab DIN tus qauv, uas nrog advanced tshuab thiab zoo nkauj tsim. Muab faib ua hom ntawm hom thiab tshem tawm, txhawb kev siv European qauv fais fab, tsim rau rhiav thiab warehouse cov ntaub ntawv tuav, loj qhov tseem ceeb ua ke thiab lwm qhov chaw.
HD hom European Hoist Electric Ib qho nyiaj tau siv ua haujlwm Crane
Qhia qhov tseemceeb:
European Single Girder Nyiaj Siv Tawm Crane yog compact lifting machinery tsim thiab tsim nyob rau hauv nruj raws li FEM thiab DIN tus qauv, uas nrog advanced tshuab thiab zoo nkauj tsim. Muab faib ua hom ntawm hom thiab tshem tawm, txhawb kev siv European qauv fais fab, tsim rau rhiav thiab warehouse cov ntaub ntawv tuav, loj qhov tseem ceeb ua ke thiab lwm qhov chaw.

Nws yuav siv ntau hauv kev siv ua khoom, hlau, petroleum, petrifaction, chaw nres nkoj, kev tsheb nqaj hlau, kev tsav dav hlau, khoom noj khoom haus, ntawv tsim, siv, electronics industries rhiav, warehouse thiab lwm yam khoom siv ntiag tug, esp. ua ntaub ntawv rau cov khoom siv uas yuav tsum muaj qhov tseeb qhov tseeb, cov Cheebtsam loj kom meej meej qhov sib txoos.

Xav Paub Cov Ntxhais:

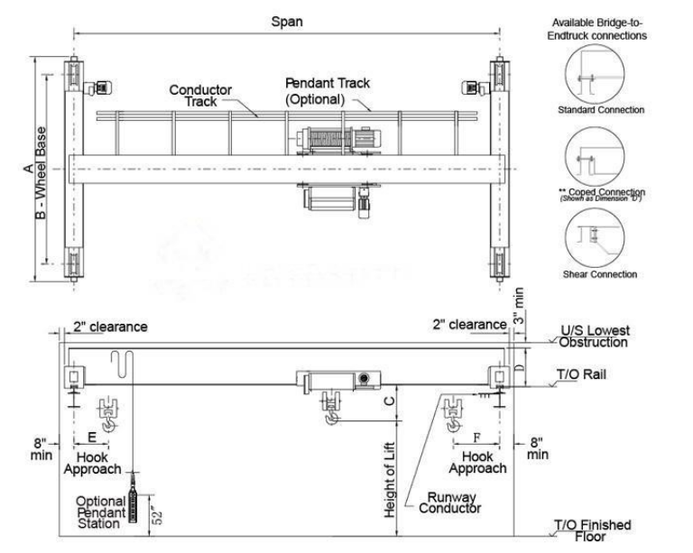
Sketch kos duab:

Kev Ntsuas Lus:
Tau Txais | m | 7.5 | 10.5 | 13.5 | 16.5 | 19.5 | 22.5 | 25.5 |
Peev Xwm | t | 1 ~ 12.5t | ||||||
Tag nrho qhov hnyav | kg | 1781 ~ 12086 | ||||||
Trolley luj | kg | 405 ~ 740 | ||||||
Max. Log load | kn | 13.5 ~ 90.94 | ||||||
Mus ncig tebchaws rail | P24 ~ P43 | |||||||
Lifting ceev | m / min | 0.8 / 5 | 0.8 / 5 | 0.8 / 5 | 0.8 / 5 | 0.8 / 5 | 0.8 / 5 | 0.8 / 5 |
Lifting qhov siab | m | ≥ 6 | ≥ 6 | ≥ 6 | ≥ 6 | ≥ 6 | ≥ 6 | ≥ 6 |
Tag nrho lub cev muaj zog | kw | 4.31 | 4.31 | 4.31 | 4.31 | 4.67 | 4.67 | 4.67 |
Crane ceev | m / min | 3-30 | 3-30 | 3-30 | 3-30 | 3-30 | 3-30 | 3-30 |
Trolley ceev | m / min | 2-20 | 2-20 | 2-20 | 2-20 | 2-20 | 2-20 | 2-20 |
Ua hauj lwm | M5 / A5 | |||||||


English
فارسی
Polski
Français
Kreyòl Ayisyen
slovenščina
slovenčina
Čeština
magyar
Deutsch
hrvatski
Malti





